“I’m kind of holding off on things right now to save time in the future.”
— Brett Chupinka, Real Estate Broker, K&S Real Estate
Results at a Glance
- Time per form: Reduced from 10+ minutes to ~2 minutes
- Forms processed: 15-20 forms per month across two form types
- Setup time: Two forms configured and optimized within one week
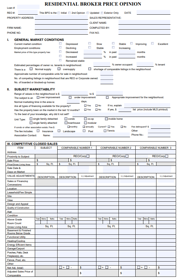
- Forms automated: Residential Broker Price Opinion and GITSIT Solutions Competitive Market Analysis

Executive Summary
K&S Real Estate, a brokerage based in the Pittsburgh area, handles 15-20 Broker Price Opinion (BPO) and Competitive Market Analysis (CMA) forms monthly. The manual data entry process involved transferring MLS CSV exports, which was slow, taking over 10 minutes per form, and prone to errors with comparable property placement. By partnering with Instafill.ai, K&S Real Estate automated this form-filling process, reducing form completion time to under 2 minutes and achieving accuracy above 99%. This allowed Brett’s team to manage their workloads more reliably and scale operations without disruption.
About K&S Real Estate
K&S Real Estate is led by Brett Chupinka and specializes in detailed property evaluations across Pennsylvania. The firm processes hundreds of BPO and CMA reports each year, emphasizing accuracy and timely delivery to support their clients’ decision-making.
The Challenge
Handling 15-20 BPO forms monthly required Brett to manually map MLS CSV data into PDF forms. Pain points included:
- Lengthy manual entry (10+ minutes per form) for complex fields such as addresses, prices, beds/baths, square footage, basement details, heating/cooling, etc.
- Two similar but distinct PDF forms with varying layouts, radio buttons, checkboxes, and composite address formatting.
- Correct placement of sold versus active/contingent listings in separate sections to avoid rework.
- MLS PDF exports contained mixed tables and images, while CSV was a cleaner input source.
- Manual entry was not scalable as Brett considered expanding to other agents.

The Solution
Partnering with Instafill.ai, K&S Real Estate transformed its workflow by automating the data population of BPO and CMA forms. Key elements:
- Accurate data extraction and mapping from CSV files to multiple PDF fields.
- Automated sorting and placement of property statuses across multi-page forms.
- User profiles for reusable static data, reducing repetitive entry.
- Ongoing refinement with Brett’s input to improve form accuracy and usability.
Within one week, two form types were fully configured and operational.
Results
Processing time per form dropped by approximately 80%, from over 10 minutes to about 2 minutes. Accuracy improved to above 99%, reducing manual corrections. K&S Real Estate now processes 15-20 forms each month and anticipates adding more agents without workflow delays. The automation reduced Brett’s manual workload, allowing more time to focus on client service.
Looking Ahead
With automation in place, K&S Real Estate plans to expand automated form processing to additional types and onboard more agents supported by AI workflows. Brett also intends to explore integration with web-based MLS platforms to improve efficiency further and continues to refine processes based on ongoing feedback.
